【2026年最新】ヘーベルハウスの平屋の坪単価は?価格相場と間取り実例を徹底解説

当ページのリンクにはPRが含まれています。
ヘーベルハウスの平屋の坪単価は?

ヘーベルハウスにも平屋がある!

でも、やっぱり高いんでしょ?

「頑丈で安心」と評判のヘーベルハウスですが、平屋となると価格が気になりますよね。
この記事では、2026年最新の坪単価情報から、予算別のリアルな建築実例までを徹底解説します。

この記事でわかること
  • ヘーベルハウス平屋のリアルな価格相場と坪単価
  • 1000万〜3000万円台の建築実例イメージ
  • 坪数別(20坪・30坪)の建築費用と間取り
  • 家事動線が抜群な人気間取り例
  • 「もったいない」と言われる理由と真実
  • 失敗しないためのカタログ一括請求の活用法
目次

ヘーベルハウス平屋の価格相場と坪単価

ヘーベルハウス平屋の価格相場と坪単価

「高い」と言われがちなヘーベルハウスですが、その理由は業界トップクラスの「耐震性」と「耐久性」にあります。
特に平屋は、基礎や屋根の面積が広くなるため、2階建てよりも坪単価が割高になる傾向があります。

しかし、初期費用だけで判断するのは早計です。

長期的な視点が大切だよ

60年以上の長期保証やメンテナンスのしやすさを考慮すると、トータルのライフサイクルコストは意外と抑えられるのがヘーベルハウスの強みです。

ヘーベルハウスの平屋の坪単価目安は90万円から

最新の相場観として、坪単価の目安はおよそ90万円から150万円を見ておきましょう。

幅があるのは、選ぶ設備(キッチンやバスなどのグレード)や、外構工事の内容によって総額が大きく変わるためです。

一般的に平屋は二階建てより坪単価が高くなる傾向があります。

同じ延床面積でも、基礎コンクリートや屋根の資材が2倍近く必要になるからです。

それでも「階段のない暮らし」の快適さを求めて、平屋を選ぶ人が増えています。

ヘーベルハウスの平屋を1000万・2000万・3000万で建てられる家のイメージ

ヘーベルハウスの平屋予算別

ヘーベルハウスの平屋を1000万円台で建てるのは可能?

正直にお伝えすると、ヘーベルハウスで1000万円台の建築は極めて難しいです。

ヘーベルハウスの高品質な部材(ALCコンクリートや鉄骨)を使用するため、物理的にコストが掛かります。
もし予算1000万円台が絶対条件であれば、ローコスト住宅メーカーと比較検討する必要があります。

ヘーベルハウスの平屋を2000万円台の建築実例と総額

2000万円台後半の予算なら、コンパクトな平屋建築が見えてきます。

延床面積20坪〜25坪程度の、夫婦二人暮らしに最適な1LDK〜2LDKがイメージです。

ただし注意点として、これは「建物本体」の価格である場合が多いです。

給排水工事や地盤改良、外構費などの「付帯工事費」を含めると、総額は3000万円近くになることを想定して資金計画を立てましょう。

ヘーベルハウスの平屋を3000万円台で実現できること

建物本体に3000万円台の予算があれば、かなり自由度の高い理想の家づくりが可能です。

延床面積30坪前後のゆとりある3LDKで、ファミリー世帯でも快適に暮らせます。
「そらのま(アウトドアリビング)」を採用したり、キッチン設備のグレードを上げたりと、こだわりを詰め込める価格帯です。

ヘーベルハウスの平屋を坪数別で建築費用をみる

ヘーベルハウスの平屋を坪数別で建築費用をみる

ヘーベルハウスの平屋20坪の総額と間取り

【想定総額:2500万円〜】

坪単価90万円なら建物本体だけで約1800万円。諸経費込みで2500万円以上が目安です。
間取りは、廊下を極力なくしてLDKを広く取る工夫をした2LDKが中心。ミニマムで掃除が楽な、機能的な住まいになります。

ヘーベルハウスの平屋30坪の総額と間取り

【想定総額:3500万円〜】

坪単価90万円計算で建物本体約2700万円。総額は3500万円以上を見込みましょう。
30坪あれば4人家族でも快適な3LDK〜4LDKが可能です。収納をたっぷりとったり、ランドリールームを設けたりと、家事動線に優れた間取りが実現できます。

【体験談】予算オーバーでもヘーベルハウスを選んだ理由

ヘーベルハウスは高い体験談

「ヘーベルハウスは高い…」

私も最初はそう思って諦めかけていました。
ネットの噂や坪単価だけを見て、「うちの年収じゃ無理だ」と決めつけていたんです。

でも、災害のニュースを見るたびに「やっぱり家族の命を守れる家がいい」という思いが消えなくて。
ダメ元で展示場に行き、正直に予算を伝えて相談してみました。

そこで提案されたプランに驚きました。
「この間取りなら、無駄を削ぎ落として予算内に近づけられます」
「将来のメンテナンス費も含めれば、実は他社と総支払額は変わりません」

プロの提案力は凄かったです。
結果、私たちはヘーベルハウスを選びました。
住んでみて感じるのは、圧倒的な静かさと安心感。「あの時、諦めずに相談してよかった」と心から思っています。

もしあなたが「高そうだから」と迷っているなら、まずは「自分の予算でどんな家が建つのか」具体的なプランを見てみませんか?
ネットの情報だけで判断して選択肢から外すのは、正直もったいないです。

理想の平屋を建てるためには?

ハウスメーカーの公式サイトから問い合わせると、

豪華なカタログはもらえるけど、金額はわからない。


【PR】タウンライフ家づくりでは、

複数のハウスメーカーのカタログあなた向けのオリジナル間取り見積もり

無料で作ってくれます!

そのほかにも、土地探しや外構まで全部タダで教えてくれるサービスです!

タウンライフ家づくり
引用:タウンライフ家づくり公式HP

使わない手はないです

ネットから必要事項を入力するだけ。

さらには、
これを元にハウスメーカーに価格交渉すると300万円から500万円の値引きになったひとが8割もいるのです!

今なら「家づくりが成功する7つの間取りの法則」の特典も合わせてもらえます。

平屋に特化した間取りももらえるので、イメージがより具体的になるはず。

≫タウンライフ公式ページでたった3分サービスを使ってみる

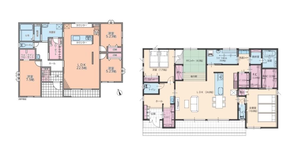
ヘーベルハウス平屋の間取り例

ヘーベルハウス平屋の間取り

ヘーベルハウスの鉄骨構造は、壁が少なくて済むため大空間リビングや自由な窓配置が得意です。

ここでは、実際の暮らしやすさを追求した人気の間取りパターンを紹介します。

ヘーベルハウスの平屋で人気の2LDKの間取り

シニア夫婦やDINKSに人気のプラン。
LDKを中心に配置し、寝室や水回りへの移動距離を最短にする「ゼロ動線」が魅力です。

余った部屋を「趣味のアトリエ」や「書斎」にするなど、贅沢な空間使いができるのも2LDK平屋の特権です。

ヘーベルハウスの平屋でファミリー向けの3LDKの間取り

子育て世帯に支持される3LDK。
ポイントは「回遊動線」です。キッチン、洗面所、ランドリールームをぐるりと回れるように配置することで、家事の負担を激減させます。

リビングの一角にスタディスペースを設けたり、家族の気配を感じつつプライバシーも守れる絶妙な距離感が人気です。

ヘーベルハウス平屋の外観・内装デザイン

ヘーベルハウスの平屋といえば、ALCコンクリートの重厚感。
大きく分けて2つのデザインスタイルがあります。

キュービック:フラット屋根の平屋

キュービック
ヘーベルハウス公式カタログより引用

「THE ヘーベルハウス」とも言える、箱型のデザイン。
フラットな陸屋根(ろくやね)が、モダンで洗練された印象を与えます。

屋根がない分、空間を有効活用できるため、屋上テラスを設けるプランも可能です。

新大地:屋根のある平屋

新大地
ヘーベルハウス公式カタログより引用

大きな勾配屋根が特徴の「新大地(しんだいち)」。
日本の伝統的な家屋の美しさと、ヘーベルハウスの機能性が融合したスタイルです。

屋根裏空間を収納やロフトとして活用できるため、平屋の収納不足問題を解消できるメリットもあります。

ヘーベルハウス平屋のメリット・デメリット

ヘーベルハウス平屋のメリット・デメリット

最後に、検討する上で知っておくべき「強み」と「弱み」を整理します。

強みである耐震性・耐久性

最大のメリットは、やはり圧倒的な災害への強さです。

独自の重量鉄骨とALCコンクリートは、地震だけでなく、台風や火災からも家族を守ります。
「災害時に避難所に行かず、自宅で過ごせる」という安心感は、ヘーベルハウスならではの価値です。

デメリット:ヘーベルハウスの平屋は「もったいない」?

ネット検索で出てくる「もったいない」という言葉。その主な理由はやはり価格の高さです。

  • 「同じ広さなら、木造メーカーでもっと安く建てられるのに」
  • 「狭い土地で平屋を建てると、庭が取れなくてヘーベルの良さが活きない」

確かに初期費用は高いです。しかし、これを「安さを取るか、60年続く安心を取るか」という投資として捉えられるかが分かれ道です。

また、ALC外壁のデザインは独特なので、「もっと木の温もりが欲しい」「デザインを選びたい」という方には制約に感じることもあるでしょう。

まとめ|ヘーベルハウス平屋の坪単価と価値は?

ヘーベルハウスまとめ

ヘーベルハウスの平屋は、坪単価90万円〜と決して安くはありません。
しかし、その価格には「災害への絶対的な安心」と「メンテナンスの手軽さ」が含まれています。

重要なのは、最初から「高いから無理」と決めつけないこと。

同じ予算でも、メーカーによって提案される間取りや広さは全く異なります。

まずは複数の会社から見積もりや間取りプランを取り寄せ、
「ヘーベルハウスならこの価格でこんな家」「他社ならこの価格」と横並びで比較することが、後悔しない家づくりの鉄則です。

あなたにぴったりの平屋プランを、無料で見つけてみませんか?

家づくり初心者におすすめは「タウンライフ家づくり」です。

自宅で3分。
資金計画・土地探し・カタログ・間取りと見積もりを無料でまとめて受け取れますよ。

家づくり何から始めれば・・・

家づくりは次の3つを押さえると進みます。

  • 予算を決める
  • いくつかの会社に見積もりを取る
  • 見積もりをもとに値引き交渉する(200〜300万円は現実的)

このうち「予算決め」と「見積もり集め」はタウンライフで一気に完了します。

気になるサービスからチェックしてみよう!

サービス一括見積りカタログ請求間取りプラン資金計画土地探し

タウンライフ
家づくり
無料で複数社から
費用比較できる
大手36社以上、全国1,190社以上希望に沿った
プロ提案がもらえる
建物だけでなく
総費用が把握できる
土地と家づくり計画
を同時提案

LIFULL HOME’S
複数社の
見積もり比較ができる
ニーズに合わせて探せる間取り自体の
提案がない
予算・資金計画
相談ができる
土地探しは
サービス外

持ち家計画
無料で複数社
比較できる
提携100社以上から選べる間取り提案
はない
資金計画や
相談はない
土地情報の
検索・提案機能はない

無料の一括見積もりを取り、気になるメーカーに交渉すれば200〜300万円の値下げは十分ねらえます。

家づくりを効率よく進めたいなら、見積もり・間取り・資金計画が一度にそろう「タウンライフ家づくり」が最短ルートです。

➤➤ タウンライフ家づくり

よかったらシェアしてね!
  • URLをコピーしました!
  • URLをコピーしました!
目次